- Главная
- Дома из бревна
- Боярин
Боярин




Исполнение:
Доступные размеры:
Общая площадь:
280 м²(в площадь входит терраса)
Стоимость:
По запросуСрок строительства:
от 25 дней- Веранда
- Терраса
- Мансардный этаж
- Двухэтажный
- С мансардой
Остались вопросы? Позвоните нашему специалисту по номеру 8 (800) 511-22-02 или пишите в WhatsApp.
Мудрым хозяевам, желающим обзавестись собственной недвижимостью, самое время обратить внимание на проекты домов из оцилиндрованного и рубленного бревна от компании «ДомаСтроим». Наша продукция отличается доступными ценами, а процесс возведения осуществляется быстро и на привлекательных для заказчика условиях. Вы можете дополнить дом пристройками и террасами, изменить планировку или немного подвинуть стены по вашему вкусу, а также выбрать материал изготовления дома. Мы реализуем любые ваши идеи!
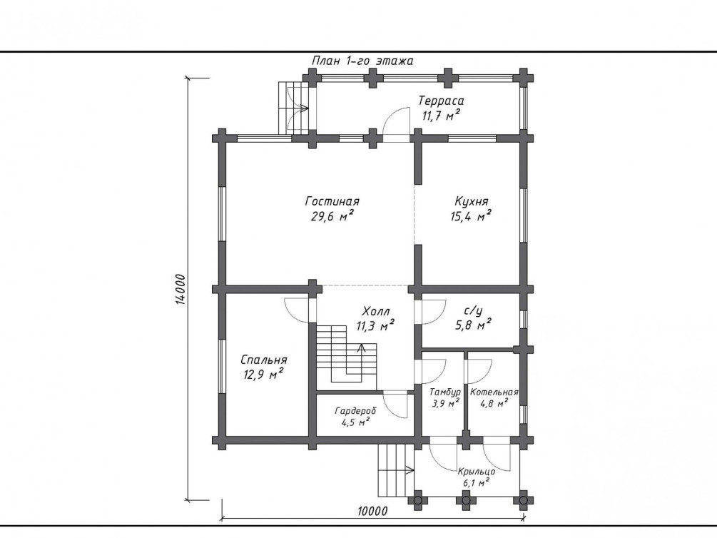
Проект бревенчатого дома «Боярин» общей площадью 280 м² идеален для большой семьи — места для отдыха, учебы или работы хватит каждому. В качестве материала сруба мы предлагаем рубленое или оцилиндрованное бревно, обработанное антисептиком. Соблюдение технологий строительства, качественные материалы и большой опыт наших мастеров гарантирую вам, что дом будет не только красивым, но и теплым, уютным.
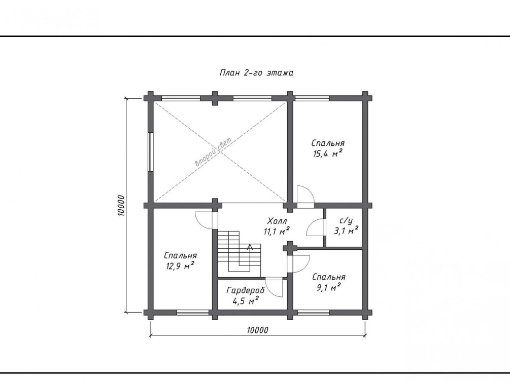
Планировкой предусмотрены сразу четыре спальни, одна внизу, три наверху. Комнату на первом этаже можно использовать как гостевую, детскую, кабинет, если кто-то в семье работает из дома. На первом этаже также есть гостиная, кухня, санузел, гардеробная, котельная. Наверху — второй санузел и еще одна гардеробная. Такая планировка позволит вам организовать удобное хранение вещей, отказаться от массивных шкафов, а значит, и сохранить ощущение простора в комнатах. Входов в дом два, с крыльца можно попасть в тамбур, а с веранды — напрямую в гостиную. Гостиная и кухня не разделены перегородкой, но это можно исправить, как и внести другие изменения.
Преимущества проекта:
- Застекленная веранда.
- Второй свет наверху.
- Подходит для большой семьи.
Что входит в стоимость :
1. Лес зимней заготовки:
- Диаметр в вершине бревна - от 240 мм.
- Сруб обработан антисептиком Prosept Universal.
2. Пиломатериал
- Межэтажные перекрытия (брус 100х200 мм).
- Стропила (доска 50х200 мм).
- Обрешетка под рубероид (доска 25х150 мм).
- Пиломатериал для строительных лесов (2 сорт).
3. Расходные материалы
- Межвенцовый утеплитель на выбор.
- Березовые нагеля.
- Метизы (скользящие опоры, саморезы, гвозди, компенсаторы усадки и т.д.).
- Гидроизоляция под первый венец.
4. Доставка
- Погрузка и разгрузка манипулятором.
- Доставка рассчитана до МКАД.
5. Монтажные работы
- Монтаж гидроизоляции.
- Сборка домокомплекта.
- Монтаж балок перекрытий.
- Монтаж крыши (стропила, обрешетка, покрытие рубероид).
- Уборка мусора и укладка оставшегося пиломатериала.
Категория:
Общая площадь:
(в площадь входит терраса)
Стоимость:
По запросуВыражаю свою благодарность компании "Дома Строим" (г. Видное) за строительство качественного, крепкого, теплого и уютного дома. Отдельное огромное, человеческое Спасибо Марине - Генеральному директору компании и Владимиру за терпение, профессиональный подход к делу, за всестороннюю помощь, за честность, ведение нашего строительства с нуля и до завершения, всегда на связи , всегда есть ответы на любые вопросы, верные советы и рекомендации. Никаких удорожаний после расчетов, и оплаты. В процессе строительства были соблюдены все сроки, от фундамента до сдача дома. Спасибо, большое строительной бригаде, которая работала над нашим домом. Дом нашей мечты получился таким, каким должен был быть. Буквально за месяц на нашем участке появился наш двухэтажный красавец. Еще раз, спасибо. Ольга. Московская область, Богородский городской округ, Ногинский район, ДНП Изумрудная поляна
Решили построить дом из СИП-панелей. Было решено найти тех, кто построит по фото. Оказалось не так просто в сезон (да еще с самоизоляцией и карантином все в стройки/ремонты ударились) найти компанию, которая в принципе возьмется не за свой типовой проект, да еще и чтоб ценник разумный вышел. Однако нам повезло! Компания "Дома Строим" охотно отозвалась выполнить эту задачу. Компанией полностью довольны, рекомендуем!
Заказывали в «Дома Строим» дом из бруса, так как видели их дома в коттеджном поселке. Сам сруб нам сделали за месяц, сборка под крышу тоже около того. Дом очень теплый и нам очень нравится. Мы не пожалели, что выбрали клееный брус и компанию «Дома Строим». Еще немного и будем отмечать новоселье.
Задались с женой вопросом о постройке дома на даче.
После долгого поиска выбрали компанию "Дома Строим". Нашли очень уютный каркасный домик по недорогой цене. Сразу же позвонили в компанию "Дома Строим" и быстро обо всем договорились.
Сроки строительства нас очень порадовали! Не прошло и полмесяца, как «Дома Строим» сделали фундамент и возвели сам дом.
Всем довольны, всем рекомендуем!
-
Перепланировка
Внесение любых изменений в планировку и фасады дома, адаптация под СИП проектов из других материалов или полностью индивидуальная разработка с нуля
-
Исследование грунта
Производится в обязательном порядке с выездом специалиста на участок для оценки грунта и подбора оптимального фундамента
-
Гарантия качества
Качество стоит для нас на первом месте, поэтому мы имеем ОТК на производстве, технический надзор на стройплощадке и даем официальную гарантию
Остались вопросы? Позвоните нашему специалисту по номеру 8 (800) 511-22-02 или пишите в WhatsApp.
![]()
Консультация в офисе
![]()
Показ построенных нами объектов
![]()
Расчет стоимости
![]()
Заключение договора
![]()
Строительство
![]()
Сдача объекта
![]()
Подписание акта
![]()
Счастливая жизнь за городом
















