- Главная
- Дома из СИП-панелей
- Каспий
Каспий




Категория:
Доступные размеры:
Общая площадь:
189 м²(в площадь входит терраса)
Стоимость:
от 2 596 900₽Срок строительства:
от 35 дней- Веранда
- Терраса
- Плоская крыша
- Двухэтажный
Остались вопросы? Позвоните нашему специалисту по номеру 8 (800) 511-22-02 или пишите в WhatsApp.
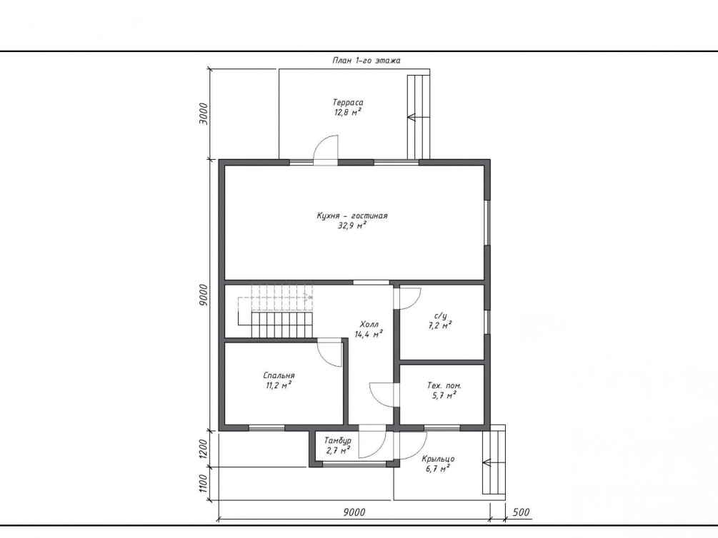
Проект двухэтажного дома общей площадью 189 м2 «Каспий» — идеальное решение для тех, кому нравятся простор, обилие воздуха и естественного света. Это дом для комфортной, спокойной жизни вдали от суеты, где у каждого будет собственное место для работы, учебы, отдыха. Лаконичный стиль дома отлично впишется и в городской, и в загородный ландшафт.
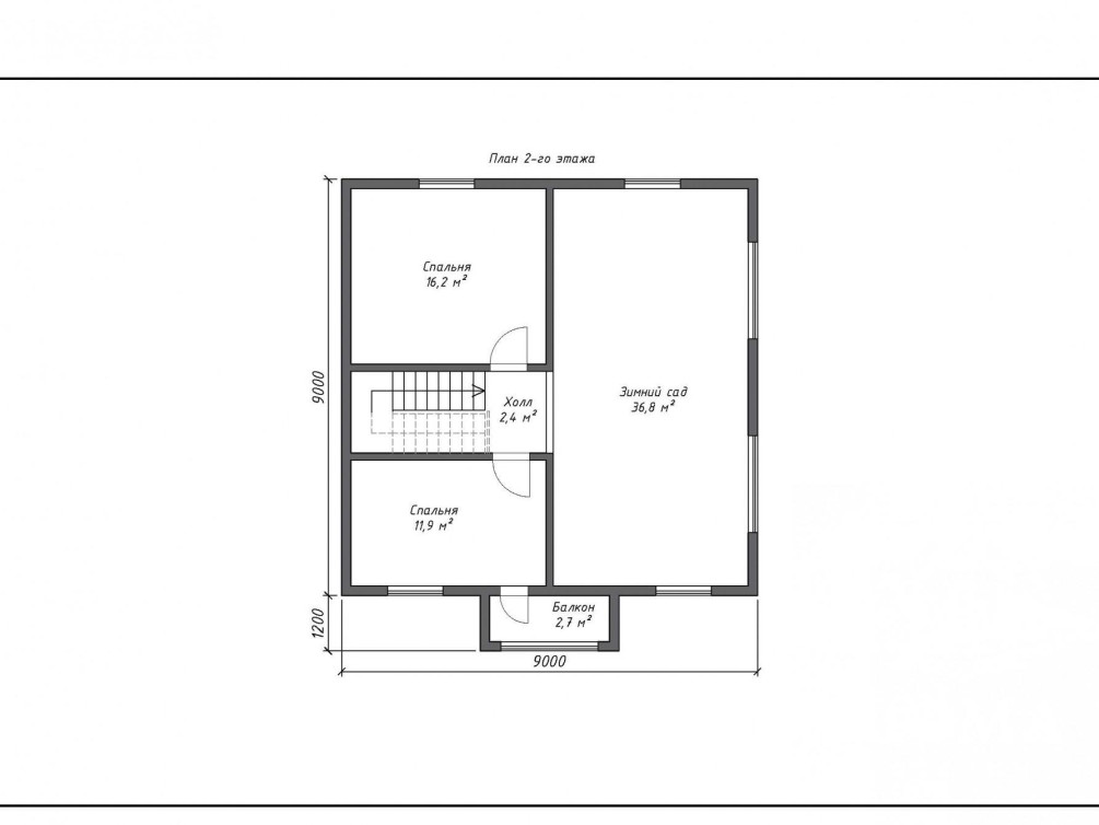
На первом этаже — большая кухня-гостиная площадью 32,9 м2, окна которой выходят на террасу, спальня, просторный санузел и техническое помещение. Из гостиной есть выход на террасу. Холл первого этажа отделен от входа тамбуром — такое решение сберегает тепло зимой и защищает от летней жары. На втором этаже — две спальни, в одной из них предусмотрен выход на балкон.
Главное украшение дома — зимний сад площадью 36,8 м2. Конечно, вы можете использовать это помещение и в других целях, окна с трех сторон наполняют его светом и делают его идеальным для организации художественной студии, творческой мастерской, комнаты отдыха или игровой для детей.
Большой, светлый, уютный — если дом вашей мечты именно такой, звоните! Мы построим его быстро, срок строительства — от 35 дней. Планировка может быть другой, если вы захотите.
Преимущества проекта:
- Полноценный второй этаж.
- Отделка фасадов колерованной акриловой штукатуркой Ceresit и имитацией бруса.
- Выходы из дома на две стороны.
- Современный лаконичный дизайн.
- Зимний сад на втором этаже.
В сборке домов по технологии СИП мы используем пиломатериал камерной сушки, калиброванный, строганный, антисептированный, который обеспечит запас прочности вашего дома.
| СИП | ||
| Стандарт: от 2 596 900 | Премиум: от 3 107 612 | |
| Проектные работы: архитектурный проект, 3D-визуализация наружной и внутренней части дома | ||
| Фундамент: Винтовые сваи длиной 2500 мм. под ключ | ||
| Пол: SIP панели 174 мм (OSB-3 12 мм ) | SIP панели 224 мм (OSB-3 12 мм) | |
| Стены: SIP панели 174 мм (OSB-3 12 мм) | ||
| Потолок: Высота 1 эт. - 2,8 м.; 2 эт. - 2,5 | ||
| Перегородки: Каркасная система | SIP панели 124, 174 мм (OSB-3 12 мм) | |
| Межэтажное перекрытие: Каркасная система | SIP панели 174 мм (OSB-3 12 мм ) | |
| Чердачное перекрытие:Каркасная система | SIP панели 174 мм (OSB-3 12 мм) | |
| Кровля: Наплавляемая кровля Технониколь | Наплавляемая кровля Технониколь | |
| Монтаж: Бригада Дома Строим, крепеж и комплектующие | ||
| Дополнительные работы (оплачиваются отдельно): 1. Окна ПВХ 2. Дверь входная 3. Вентиляционные выходы на крышу 4. Монтаж водосточной системы 5. Отделка свесов крыши/навесов 6. Чистовая отделка террасы, крыльца, балкона 7. Отделка фасада 8. Отделка цоколя | ||
Категория:
Общая площадь: 
(в площадь входит терраса)
Стоимость:
от 2 596 900₽Выражаю свою благодарность компании "Дома Строим" (г. Видное) за строительство качественного, крепкого, теплого и уютного дома. Отдельное огромное, человеческое Спасибо Марине - Генеральному директору компании и Владимиру за терпение, профессиональный подход к делу, за всестороннюю помощь, за честность, ведение нашего строительства с нуля и до завершения, всегда на связи , всегда есть ответы на любые вопросы, верные советы и рекомендации. Никаких удорожаний после расчетов, и оплаты. В процессе строительства были соблюдены все сроки, от фундамента до сдача дома. Спасибо, большое строительной бригаде, которая работала над нашим домом. Дом нашей мечты получился таким, каким должен был быть. Буквально за месяц на нашем участке появился наш двухэтажный красавец. Еще раз, спасибо. Ольга. Московская область, Богородский городской округ, Ногинский район, ДНП Изумрудная поляна
Решили построить дом из СИП-панелей. Было решено найти тех, кто построит по фото. Оказалось не так просто в сезон (да еще с самоизоляцией и карантином все в стройки/ремонты ударились) найти компанию, которая в принципе возьмется не за свой типовой проект, да еще и чтоб ценник разумный вышел. Однако нам повезло! Компания "Дома Строим" охотно отозвалась выполнить эту задачу. Компанией полностью довольны, рекомендуем!
Заказывали в «Дома Строим» дом из бруса, так как видели их дома в коттеджном поселке. Сам сруб нам сделали за месяц, сборка под крышу тоже около того. Дом очень теплый и нам очень нравится. Мы не пожалели, что выбрали клееный брус и компанию «Дома Строим». Еще немного и будем отмечать новоселье.
Задались с женой вопросом о постройке дома на даче. 
После долгого поиска выбрали компанию "Дома Строим". Нашли очень уютный каркасный домик по недорогой цене. Сразу же позвонили в компанию "Дома Строим" и быстро обо всем договорились. 
Сроки строительства нас очень порадовали! Не прошло и полмесяца, как «Дома Строим» сделали фундамент и возвели сам дом. 
Всем довольны, всем рекомендуем!
- 
      ![]()  ПерепланировкаВнесение любых изменений в планировку и фасады дома, адаптация под СИП проектов из других материалов или полностью индивидуальная разработка с нуля 
- 
      ![]()  Исследование грунтаПроизводится в обязательном порядке с выездом специалиста на участок для оценки грунта и подбора оптимального фундамента 
- 
      ![]()  Гарантия качестваКачество стоит для нас на первом месте, поэтому мы имеем ОТК на производстве, технический надзор на стройплощадке и даем официальную гарантию 
Остались вопросы? Позвоните нашему специалисту по номеру 8 (800) 511-22-02 или пишите в WhatsApp.
![]() - Консультация в офисе 
![]() - Показ построенных нами объектов 
![]() - Расчет стоимости 
![]() - Заключение договора 
![]() - Строительство 
![]() - Сдача объекта 
![]() - Подписание акта 
![]() - Счастливая жизнь за городом 















































 
       
       
       
         
         
         
         
         
         
         
         
         
        






