НИВА




Категория:
Доступные размеры:
Общая площадь:
142 м²Стоимость:
от 2 269 750₽Срок строительства:
от 35 дней- Мансардный этаж
- С эркером
- Двухэтажный
- С мансардой
Остались вопросы? Позвоните нашему специалисту по номеру 8 (800) 511-22-02 или пишите в WhatsApp.
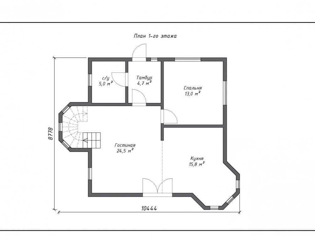
Двухэтажный дом с тремя спальнями по проекту «Нива» — хорошее решение и для города, и для пригорода. Нестандартная форма фасадов выгодно выделяет его на фоне однотипных строений, а функциональная планировка делает жизнь комфортнее и приятнее. Эркеры с двух сторон — один для лестницы, второй для кухни и спальни — расширяют внутреннее пространство.
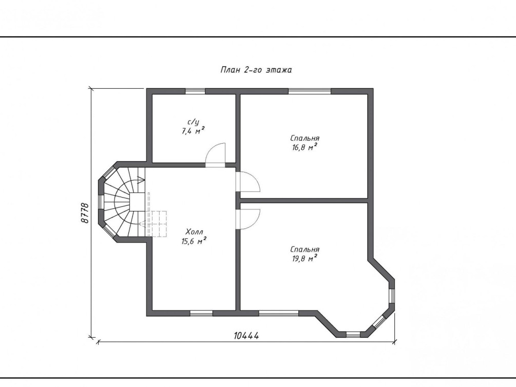
Общая площадь дома — 142 м2. На первом этаже расположены тамбур, санузел, большая кухня и гостиная. Здесь же находится и одна из спален. На втором этаже — еще две спальни и санузел. Санузлы расположены один над другим, чтобы прокладывать коммуникации было дешевле и удобнее.
Выходов из дома два, один — на открытую террасу, второй — на крыльцо. В качестве настила используется специальная террасная доска из ДПК. Внешне она неотличима от натурального дерева, но при этом не боится влаги, перепадов температур и ультрафиолета. Такое покрытие прослужит много лет, не утратив красоты и прочности.
Мы построим для вас дом по проекту «Нива» в сжатые сроки — для этого потребуется от 35 дней. При необходимости можем поменять планировку. Отделка фасадов колерованной акриловой штукатуркой Ceresit и плиткой HAUBERK придаст дому эффектный, завершенный вид.
Преимущества проекта:
- Удобная планировка с двумя входами.
- Визуальное разграничение кухни и гостиной без стен и перегородок.
- Нестандартный, современный вид фасадов.
В сборке домов по технологии СИП, КАРКАС мы используем пиломатериал камерной сушки, калиброванный, строганный, антисептированный, который обеспечит запас прочности вашего дома.
| СИП | ||
| Стандарт: от 2 269 750 | Премиум: от 2 635 890 | |
| Проектные работы: архитектурный проект, 3D-визуализация наружной и внутренней части дома | ||
| Фундамент: Винтовые сваи длиной 2500 мм. под ключ | ||
| Пол: SIP панели 174 мм (OSB-3 12 мм) | SIP панели 224 мм (OSB-3 12 мм) | |
|
Стены: SIP панели 174 мм (OSB-3 12 мм) Высота потолка 1 эт – 2,8 м
Высота потолка 2 эт – 2,8 м |
||
| Потолок: Высота - 1 эт – 2,8 м, 2 эт – 2,8 м | ||
| Перегородки: Каркасная система | SIP панели 124, 174 мм (OSB-3 12 мм) | |
| Межэтажное перекрытие: Каркасная система | SIP панели 174 мм (OSB-3 12 мм ) | |
| Крыша: Стропильная система | SIP панели 174 мм (OSB-3 12 мм) | |
| Кровля: Металлочерепица | Мягкая черепица Shinglas | |
| Монтаж: Бригада Дома Строим, крепеж и комплектующие | ||
|
Дополнительные работы (оплачиваются отдельно): 1. Окна ПВХ 2. Дверь входная 3. Вентиляционные выходы на крышу 4. Монтаж водосточной системы 5. Отделка свесов крыши/навесов 6. Чистовая отделка террасы, крыльца, балкона 7. Отделка фасада 8. Отделка цоколя | ||
Категория:
Общая площадь:
142 м²Стоимость:
от 2 269 750₽Выражаю свою благодарность компании "Дома Строим" (г. Видное) за строительство качественного, крепкого, теплого и уютного дома. Отдельное огромное, человеческое Спасибо Марине - Генеральному директору компании и Владимиру за терпение, профессиональный подход к делу, за всестороннюю помощь, за честность, ведение нашего строительства с нуля и до завершения, всегда на связи , всегда есть ответы на любые вопросы, верные советы и рекомендации. Никаких удорожаний после расчетов, и оплаты. В процессе строительства были соблюдены все сроки, от фундамента до сдача дома. Спасибо, большое строительной бригаде, которая работала над нашим домом. Дом нашей мечты получился таким, каким должен был быть. Буквально за месяц на нашем участке появился наш двухэтажный красавец. Еще раз, спасибо. Ольга. Московская область, Богородский городской округ, Ногинский район, ДНП Изумрудная поляна
Решили построить дом из СИП-панелей. Было решено найти тех, кто построит по фото. Оказалось не так просто в сезон (да еще с самоизоляцией и карантином все в стройки/ремонты ударились) найти компанию, которая в принципе возьмется не за свой типовой проект, да еще и чтоб ценник разумный вышел. Однако нам повезло! Компания "Дома Строим" охотно отозвалась выполнить эту задачу. Компанией полностью довольны, рекомендуем!
Заказывали в «Дома Строим» дом из бруса, так как видели их дома в коттеджном поселке. Сам сруб нам сделали за месяц, сборка под крышу тоже около того. Дом очень теплый и нам очень нравится. Мы не пожалели, что выбрали клееный брус и компанию «Дома Строим». Еще немного и будем отмечать новоселье.
Задались с женой вопросом о постройке дома на даче.
После долгого поиска выбрали компанию "Дома Строим". Нашли очень уютный каркасный домик по недорогой цене. Сразу же позвонили в компанию "Дома Строим" и быстро обо всем договорились.
Сроки строительства нас очень порадовали! Не прошло и полмесяца, как «Дома Строим» сделали фундамент и возвели сам дом.
Всем довольны, всем рекомендуем!
-
Перепланировка
Внесение любых изменений в планировку и фасады дома, адаптация под СИП проектов из других материалов или полностью индивидуальная разработка с нуля
-
Исследование грунта
Производится в обязательном порядке с выездом специалиста на участок для оценки грунта и подбора оптимального фундамента
-
Гарантия качества
Качество стоит для нас на первом месте, поэтому мы имеем ОТК на производстве, технический надзор на стройплощадке и даем официальную гарантию
Остались вопросы? Позвоните нашему специалисту по номеру 8 (800) 511-22-02 или пишите в WhatsApp.
![]()
Консультация в офисе
![]()
Показ построенных нами объектов
![]()
Расчет стоимости
![]()
Заключение договора
![]()
Строительство
![]()
Сдача объекта
![]()
Подписание акта
![]()
Счастливая жизнь за городом






















































