- Главная
- Дома из СИП-панелей
- Престиж
Престиж




Категория:
Доступные размеры:
Общая площадь:
109,86 м²(в площадь входит терраса)
Стоимость:
от 2 216 980₽Срок строительства:
от 25 дней- Веранда
- Терраса
- Мансардный этаж
- Двухэтажный
- С мансардой
Остались вопросы? Позвоните нашему специалисту по номеру 8 (800) 511-22-02 или пишите в WhatsApp.
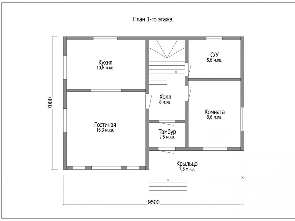
Мечтаете о комфортном доме для семьи? Присмотритесь к проекту дома с мансардным этажом «Престиж»: при общей площади 109,86 м2 в нем предусмотрено все для вашего комфорта! На первом этаже — большой холл, отделенный от входа тамбуром, гостиная, кухня, санузел и комната, которую можно использовать в качестве гостевой. На втором — три спальни, одна большая и две поменьше, санузел и кладовая. В доме много окон, поэтому он будет наполнен естественным светом.
Перед входом в дом обустроена терраса, отделенная заборчиком и защищенная от солнца и осадков крышей. В теплое время года вам достаточно будет вынести сюда уличную мебель, чтобы получилось идеальное место для отдыха.
Санузлы на первом и втором этажах расположены один под другим — это решение позволит сэкономить на монтаже инженерных коммуникаций: канализации и водоснабжения.
Планировка дома функциональна: в нем нет бесполезных пространств, которые нельзя приспособить для организации систем хранения, обустройства зон для работы, отдыха. У каждого из жильцов будет место для уединения, а также место для совместного досуга.
Строительство дома по проекту «Престиж» займет от 25 дней, при этом вы можете быть уверены, что все нормы будут тщательно соблюдены, а значит, ваш дом будет служить вам верой и правдой десятилетия! Планировку можно скорректировать под ваши запросы.
Преимущества проекта:
- Элегантный европейский стиль.
- Отделка фасадов фиброцементным сайдингом CEDRAL click Wood.
- Мансардный этаж.
- Крытое крыльцо с ограждением.
В сборке домов по технологии СИП, КАРКАС мы используем пиломатериал камерной сушки, калиброванный, строганный, антисептированный, который обеспечит запас прочности вашего дома.
| СИП | ||
| Стандарт: от 2 216 980 | Премиум: от 2 490 450 | |
| Проектные работы: архитектурный проект, 3D-визуализация наружной и внутренней части дома | ||
| Фундамент: Винтовые сваи длиной 2500 мм. под ключ | ||
| Пол: SIP панели 174 мм (OSB-3 12 мм) | SIP панели 224 мм (OSB-3 12 мм) | |
| Стены: SIP панели 174 мм (OSB-3 12 мм) | ||
| Потолок: Высота 1 эт - 2,8 м, 2 эт. Min – 1,40 м, max - 3,4 м. | ||
| Перегородки: Каркасная система | SIP панели 124, 174 мм (OSB-3 12 мм) | |
| Межэтажное перекрытие: Каркасная система | SIP панели 174 мм (OSB-3 12 мм) | |
| Крыша:Стропильная система | SIP панели 174 мм (OSB-3 12 мм) | |
| Кровля: Металлочерепица | Мягкая черепица Shinglas | |
| Монтаж: Бригада Дома Строим, крепеж и комплектующие | ||
Дополнительные работы (оплачиваются отдельно): 1. Окна ПВХ 2. Дверь входная 3. Вентиляционные выходы на крышу 4. Монтаж водосточной системы 5. Отделка свесов крыши/навесов 6. Чистовая отделка террасы, крыльца, балкона 7. Отделка фасада 8. Отделка цоколя | ||
Категория:
Общая площадь:
(в площадь входит терраса)
Стоимость:
от 2 216 980₽Выражаю свою благодарность компании "Дома Строим" (г. Видное) за строительство качественного, крепкого, теплого и уютного дома. Отдельное огромное, человеческое Спасибо Марине - Генеральному директору компании и Владимиру за терпение, профессиональный подход к делу, за всестороннюю помощь, за честность, ведение нашего строительства с нуля и до завершения, всегда на связи , всегда есть ответы на любые вопросы, верные советы и рекомендации. Никаких удорожаний после расчетов, и оплаты. В процессе строительства были соблюдены все сроки, от фундамента до сдача дома. Спасибо, большое строительной бригаде, которая работала над нашим домом. Дом нашей мечты получился таким, каким должен был быть. Буквально за месяц на нашем участке появился наш двухэтажный красавец. Еще раз, спасибо. Ольга. Московская область, Богородский городской округ, Ногинский район, ДНП Изумрудная поляна
Решили построить дом из СИП-панелей. Было решено найти тех, кто построит по фото. Оказалось не так просто в сезон (да еще с самоизоляцией и карантином все в стройки/ремонты ударились) найти компанию, которая в принципе возьмется не за свой типовой проект, да еще и чтоб ценник разумный вышел. Однако нам повезло! Компания "Дома Строим" охотно отозвалась выполнить эту задачу. Компанией полностью довольны, рекомендуем!
Заказывали в «Дома Строим» дом из бруса, так как видели их дома в коттеджном поселке. Сам сруб нам сделали за месяц, сборка под крышу тоже около того. Дом очень теплый и нам очень нравится. Мы не пожалели, что выбрали клееный брус и компанию «Дома Строим». Еще немного и будем отмечать новоселье.
Задались с женой вопросом о постройке дома на даче.
После долгого поиска выбрали компанию "Дома Строим". Нашли очень уютный каркасный домик по недорогой цене. Сразу же позвонили в компанию "Дома Строим" и быстро обо всем договорились.
Сроки строительства нас очень порадовали! Не прошло и полмесяца, как «Дома Строим» сделали фундамент и возвели сам дом.
Всем довольны, всем рекомендуем!
-
Перепланировка
Внесение любых изменений в планировку и фасады дома, адаптация под СИП проектов из других материалов или полностью индивидуальная разработка с нуля
-
Исследование грунта
Производится в обязательном порядке с выездом специалиста на участок для оценки грунта и подбора оптимального фундамента
-
Гарантия качества
Качество стоит для нас на первом месте, поэтому мы имеем ОТК на производстве, технический надзор на стройплощадке и даем официальную гарантию
Остались вопросы? Позвоните нашему специалисту по номеру 8 (800) 511-22-02 или пишите в WhatsApp.
![]()
Консультация в офисе
![]()
Показ построенных нами объектов
![]()
Расчет стоимости
![]()
Заключение договора
![]()
Строительство
![]()
Сдача объекта
![]()
Подписание акта
![]()
Счастливая жизнь за городом






















































