- Главная
- Дома из СИП-панелей
- Токсово
Токсово




Категория:
Доступные размеры:
Общая площадь:
149,4 м²(в площадь входит терраса)
Стоимость:
от 1 730 775₽Срок строительства:
от 35 дней- Веранда
- Терраса
- Плоская крыша
- Двухэтажный
Остались вопросы? Позвоните нашему специалисту по номеру 8 (800) 511-22-02 или пишите в WhatsApp.
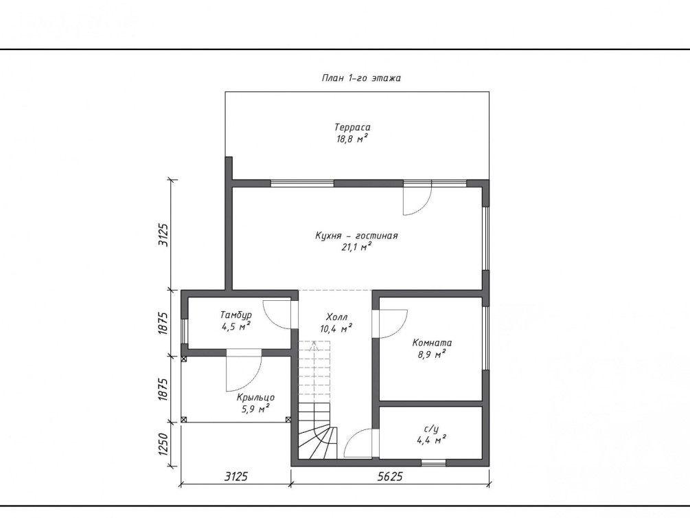
Просторный, ультрасовременный двухэтажный дом с плоской крышей привлекает внимание ценителей практичности и эстетики. Общая площадь вместе с террасой — 149,4 м2, чего вполне достаточно для семьи из 4–5 человек. Просторная кухня-гостиная с окнами на террасу, две спальни наверху, два санузла, большой тамбур — каждое помещение в доме функционально, чтобы вы могли разместить мебель и системы хранения наиболее удобным образом.
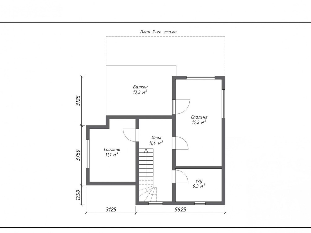
Планировка дома предусматривает наличие террасы и большого балкона с выходом из спальни на втором этаже. В теплое время года они станут отличным местом для отдыха на свежем воздухе в кругу семьи и друзей. Жилые комнаты изолированные, чтобы у каждого была возможность уединиться. Из гостиной есть выход на террасу.
Расположенные друг над другом санузлы упрощают прокладку инженерных коммуникаций. В светлое время суток большие окна наполнят дом светом и позволят отказаться от использования светильников. Комнату на первом этаже можно отдать под гостевую. По вашему запросу планировка может быть изменена.
Мы построим для вас дом по проекту «Токсово» за срок от 35 дней. Только подумайте, как быстро ваша мечта о жизни в собственном доме может осуществиться!
Преимущества проекта:
- Полноценный второй этаж.
- Отделка фасадов фиброцементными панелями и колерованной акриловой штукатуркой Ceresit.
- Просторный балкон с остеклением.
- Минималистичный дизайн.
В сборке домов по технологии СИП мы используем пиломатериал камерной сушки, калиброванный, строганный, антисептированный, который обеспечит запас прочности вашего дома.
| СИП | ||
| Стандарт: от 1 730 775 | Премиум: от 1 932 305 | |
| Проектные работы: архитектурный проект, 3D-визуализация наружной и внутренней части дома | ||
| Фундамент: Винтовые сваи длиной 2500 мм. под ключ | ||
| Пол: SIP панели 174 мм (OSB-3 12 мм ) | SIP панели 224 мм (OSB-3 12 мм) | |
| Стены: SIP панели 174 мм (OSB-3 12 мм) | ||
| Потолок: Высота 1 эт. - 2,8 м.; 2 эт. - 2,5 | ||
| Перегородки: Каркасная система | SIP панели 124, 174 мм (OSB-3 12 мм) | |
| Межэтажное перекрытие: Каркасная система | SIP панели 174 мм (OSB-3 12 мм ) | |
| Чердачное перекрытие:Каркасная система | SIP панели 174 мм (OSB-3 12 мм) | |
| Кровля: Наплавляемая кровля Технониколь | Наплавляемая кровля Технониколь | |
| Монтаж: Бригада Дома Строим, крепеж и комплектующие | ||
| Дополнительные работы (оплачиваются отдельно): 1. Окна ПВХ 2. Дверь входная 3. Вентиляционные выходы на крышу 4. Монтаж водосточной системы 5. Отделка свесов крыши/навесов 6. Чистовая отделка террасы, крыльца, балкона 7. Отделка фасада 8. Отделка цоколя | ||
Категория:
Общая площадь: 
(в площадь входит терраса)
Стоимость:
от 1 730 775₽Выражаю свою благодарность компании "Дома Строим" (г. Видное) за строительство качественного, крепкого, теплого и уютного дома. Отдельное огромное, человеческое Спасибо Марине - Генеральному директору компании и Владимиру за терпение, профессиональный подход к делу, за всестороннюю помощь, за честность, ведение нашего строительства с нуля и до завершения, всегда на связи , всегда есть ответы на любые вопросы, верные советы и рекомендации. Никаких удорожаний после расчетов, и оплаты. В процессе строительства были соблюдены все сроки, от фундамента до сдача дома. Спасибо, большое строительной бригаде, которая работала над нашим домом. Дом нашей мечты получился таким, каким должен был быть. Буквально за месяц на нашем участке появился наш двухэтажный красавец. Еще раз, спасибо. Ольга. Московская область, Богородский городской округ, Ногинский район, ДНП Изумрудная поляна
Решили построить дом из СИП-панелей. Было решено найти тех, кто построит по фото. Оказалось не так просто в сезон (да еще с самоизоляцией и карантином все в стройки/ремонты ударились) найти компанию, которая в принципе возьмется не за свой типовой проект, да еще и чтоб ценник разумный вышел. Однако нам повезло! Компания "Дома Строим" охотно отозвалась выполнить эту задачу. Компанией полностью довольны, рекомендуем!
Заказывали в «Дома Строим» дом из бруса, так как видели их дома в коттеджном поселке. Сам сруб нам сделали за месяц, сборка под крышу тоже около того. Дом очень теплый и нам очень нравится. Мы не пожалели, что выбрали клееный брус и компанию «Дома Строим». Еще немного и будем отмечать новоселье.
Задались с женой вопросом о постройке дома на даче. 
После долгого поиска выбрали компанию "Дома Строим". Нашли очень уютный каркасный домик по недорогой цене. Сразу же позвонили в компанию "Дома Строим" и быстро обо всем договорились. 
Сроки строительства нас очень порадовали! Не прошло и полмесяца, как «Дома Строим» сделали фундамент и возвели сам дом. 
Всем довольны, всем рекомендуем!
- 
      ![]()  ПерепланировкаВнесение любых изменений в планировку и фасады дома, адаптация под СИП проектов из других материалов или полностью индивидуальная разработка с нуля 
- 
      ![]()  Исследование грунтаПроизводится в обязательном порядке с выездом специалиста на участок для оценки грунта и подбора оптимального фундамента 
- 
      ![]()  Гарантия качестваКачество стоит для нас на первом месте, поэтому мы имеем ОТК на производстве, технический надзор на стройплощадке и даем официальную гарантию 
Остались вопросы? Позвоните нашему специалисту по номеру 8 (800) 511-22-02 или пишите в WhatsApp.
![]() - Консультация в офисе 
![]() - Показ построенных нами объектов 
![]() - Расчет стоимости 
![]() - Заключение договора 
![]() - Строительство 
![]() - Сдача объекта 
![]() - Подписание акта 
![]() - Счастливая жизнь за городом 















































 
       
       
       
         
         
         
         
         
         
         
         
         
        






