- Главная
- Каркасные дома
- НИВА
НИВА




Категория:
Доступные размеры:
Общая площадь:
142 м²Стоимость:
от 4 990 000₽Срок строительства:
от 35 дней- Мансардный этаж
- С эркером
- Двухэтажный
- С мансардой
Остались вопросы? Позвоните нашему специалисту по номеру 8 (800) 511-22-02 или пишите в WhatsApp.
Мудрым хозяевам, желающим обзавестись собственной недвижимостью, самое время обратить внимание на проекты домов из СИПа и каркаса от компании «ДомаСтроим». Наша продукция отличается доступными ценами, а процесс возведения осуществляется быстро и на привлекательных для заказчика условиях. Вы можете дополнить дом пристройками и террасами, изменить планировку или немного подвинуть стены по вашему вкусу, а также выбрать материал изготовления дома. Мы реализуем любые ваши идеи!
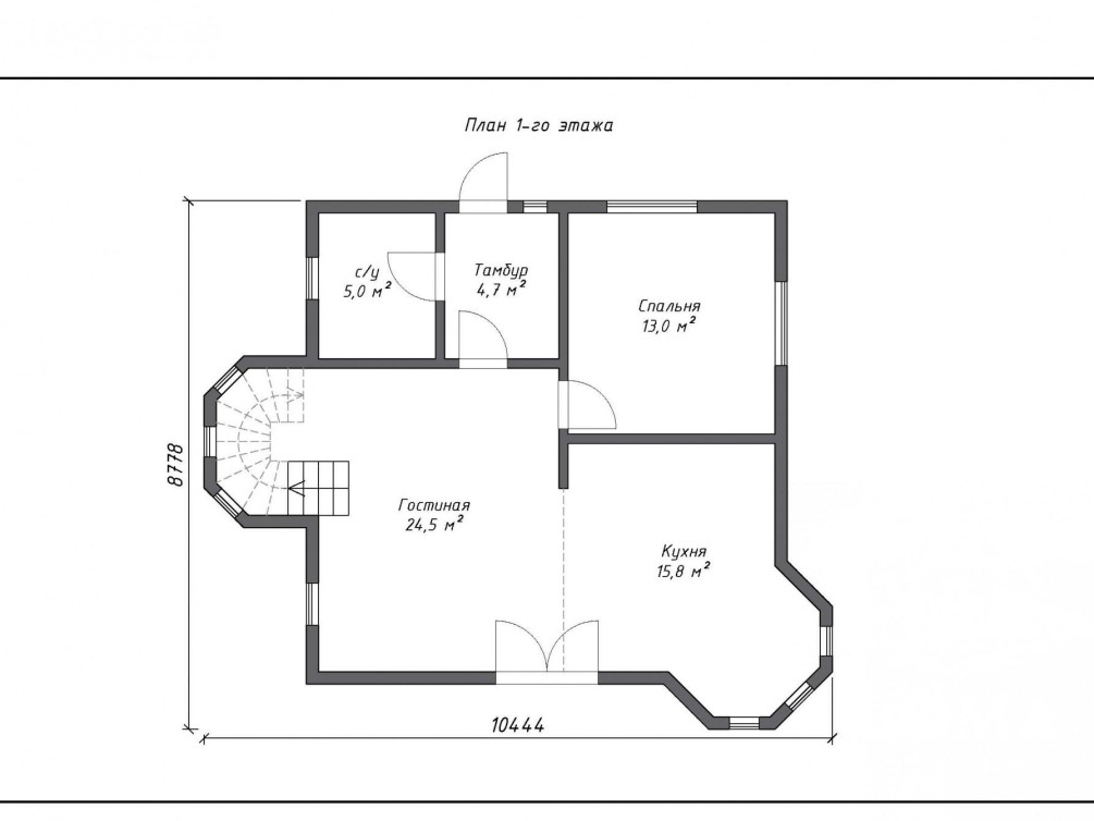
Строительство дома «Нива» по каркасной технологии занимает от 35 дней, в этот срок не включены финишные работы, их мы тоже выполним быстро, с гарантией качества. Общая площадь дома — 142 м², а главным украшением проекта стали эркеры с двух сторон здания. Отделка фасадов комбинированная, плиткой HAUBERK и акриловой колерованной штукатуркой с красивой фактурой «короед». Планировку можно изменить до начала строительства.
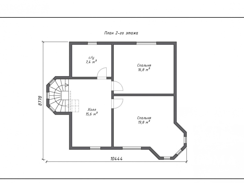
На первом этаже дома расположены гостиная, кухня, санузел и спальня. Вход с крыльца отделен от гостиной тамбуром, есть и другой вход, с террасы. Наверху — две спальни, санузел и просторный холл. Санузел наверху расположен над санузлом первого этажа, благодаря чему прокладка коммуникаций обойдется дешевле и потребует меньше сил. Настил на крыльце и террасе сделан из современного материала — древесно-полимерного композита. Он прочный, устойчивый к истиранию, влаге, солнечным лучам.
Преимущества проекта:
- Комбинированная отделка фасадов.
- Функциональная планировка.
- Эркеры с двух сторон дома.
В сборке домов по технологии СИП, КАРКАС мы используем пиломатериал камерной сушки, калиброванный, строганный, антисептированный, который обеспечит запас прочности вашего дома.
| КАРКАС | ||
| Стандарт (Стены 15см): от 4 990 000 | Премиум (Стены 20см): от 5 412 650 | |
| Проектные работы: архитектурный проект, 3D-визуализация наружной и внутренней части дома | ||
| Фундамент: Винтовые сваи длиной 2500 мм. под ключ | ||
| Пол: утепление 150 мм, доска пола 35 мм. Обработка огнебиозащитой нижнего конструктива | утепление 200 мм по энергофлексу, доска пола 35 мм. Обработка огнебиозащитой нижнего конструктива | |
| Стены: утепление 150 мм, отделка внутри и снаружи вагонкой 12,5 мм | утепление 200 мм, отделка внутри вагонкой 12,5 мм, снаружи — имитация бруса | |
| Потолок: Высота - 1 эт – 2,8 м, 2 эт – 2,8 м | ||
| Перегородки: Перегородки - каркас 100 мм, отделка вагонкой 12,5 мм, утепление - 100 мм | ||
| Межэтажное перекрытие: звукоизоляция 50 мм, отделка вагонкой 12,5 мм | звукоизоляция 100 мм, отделка вагонкой 12,5 мм | |
| Крыша: утепление 150 мм, отделка вагонкой 12,5 мм | утепление 200 мм, отделка вагонкой 12,5 мм | |
| Кровля: Оцинкованный профнастил | Металлочерепица | |
| Монтаж: Бригада Дома Строим, крепеж и комплектующие | ||
|
Дополнительные работы (оплачиваются отдельно): 1. Окна ПВХ 2. Дверь входная 3. Вентиляционные выходы на крышу 4. Монтаж водосточной системы 5. Отделка свесов крыши/навесов 6. Чистовая отделка террасы, крыльца, балкона 7. Отделка фасада 8. Отделка цоколя | ||
Категория:
Общая площадь:
142 м²Стоимость:
от 4 990 000₽Выражаю свою благодарность компании "Дома Строим" (г. Видное) за строительство качественного, крепкого, теплого и уютного дома. Отдельное огромное, человеческое Спасибо Марине - Генеральному директору компании и Владимиру за терпение, профессиональный подход к делу, за всестороннюю помощь, за честность, ведение нашего строительства с нуля и до завершения, всегда на связи , всегда есть ответы на любые вопросы, верные советы и рекомендации. Никаких удорожаний после расчетов, и оплаты. В процессе строительства были соблюдены все сроки, от фундамента до сдача дома. Спасибо, большое строительной бригаде, которая работала над нашим домом. Дом нашей мечты получился таким, каким должен был быть. Буквально за месяц на нашем участке появился наш двухэтажный красавец. Еще раз, спасибо. Ольга. Московская область, Богородский городской округ, Ногинский район, ДНП Изумрудная поляна
Решили построить дом из СИП-панелей. Было решено найти тех, кто построит по фото. Оказалось не так просто в сезон (да еще с самоизоляцией и карантином все в стройки/ремонты ударились) найти компанию, которая в принципе возьмется не за свой типовой проект, да еще и чтоб ценник разумный вышел. Однако нам повезло! Компания "Дома Строим" охотно отозвалась выполнить эту задачу. Компанией полностью довольны, рекомендуем!
Заказывали в «Дома Строим» дом из бруса, так как видели их дома в коттеджном поселке. Сам сруб нам сделали за месяц, сборка под крышу тоже около того. Дом очень теплый и нам очень нравится. Мы не пожалели, что выбрали клееный брус и компанию «Дома Строим». Еще немного и будем отмечать новоселье.
Задались с женой вопросом о постройке дома на даче.
После долгого поиска выбрали компанию "Дома Строим". Нашли очень уютный каркасный домик по недорогой цене. Сразу же позвонили в компанию "Дома Строим" и быстро обо всем договорились.
Сроки строительства нас очень порадовали! Не прошло и полмесяца, как «Дома Строим» сделали фундамент и возвели сам дом.
Всем довольны, всем рекомендуем!
-
Перепланировка
Внесение любых изменений в планировку и фасады дома, адаптация под СИП проектов из других материалов или полностью индивидуальная разработка с нуля
-
Исследование грунта
Производится в обязательном порядке с выездом специалиста на участок для оценки грунта и подбора оптимального фундамента
-
Гарантия качества
Качество стоит для нас на первом месте, поэтому мы имеем ОТК на производстве, технический надзор на стройплощадке и даем официальную гарантию
Остались вопросы? Позвоните нашему специалисту по номеру 8 (800) 511-22-02 или пишите в WhatsApp.
![]()
Консультация в офисе
![]()
Показ построенных нами объектов
![]()
Расчет стоимости
![]()
Заключение договора
![]()
Строительство
![]()
Сдача объекта
![]()
Подписание акта
![]()
Счастливая жизнь за городом






















































