- Главная
- Каркасные дома
- Ясное
Ясное




Категория:
Доступные размеры:
Общая площадь:
97,5 м²Стоимость:
от 2 567 900₽Срок строительства:
от 25 дней- Мансардный этаж
- Двухэтажный
- С мансардой
Остались вопросы? Позвоните нашему специалисту по номеру 8 (800) 511-22-02 или пишите в WhatsApp.
Мудрым хозяевам, желающим обзавестись собственной недвижимостью, самое время обратить внимание на проекты домов из СИПа и каркаса от компании «ДомаСтроим». Наша продукция отличается доступными ценами, а процесс возведения осуществляется быстро и на привлекательных для заказчика условиях. Вы можете дополнить дом пристройками и террасами, изменить планировку или немного подвинуть стены по вашему вкусу, а также выбрать материал изготовления дома. Мы реализуем любые ваши идеи!
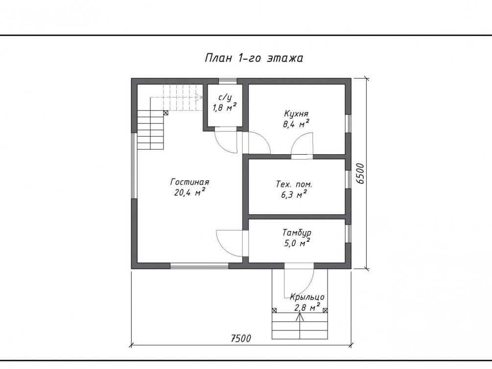
Ищете дом для небольшого участка? Рассмотрите внимательнее проект «Ясное», его общая площадь — 97,5 м², а для отделки фасадов используются панели с имитацией кирпичной кладки и планкен. Строительство дома по каркасной технологии занимает от 25 дней, сюда не входят финишные работы, их мы тоже выполним быстро и качественно. Если нужно внести изменения в планировку, передвинуть, убрать или добавить перегородки, просто сообщите нам об этом.
На первом этаже дома расположены санузел, техническое помещение под котельную или кладовку, кухня, гостиная и тамбур. На втором — большая спальня, которую при желании можно разделить на две просторные и светлые комнаты. Планировка использует внутреннее пространство дома целиком, здесь нет коридоров, темных углов и бесполезных помещений.
Настил на крыльце сделан из прочного, красивого материала — террасной доски ДПК, с фактурой и природным рисунком натурального дерева. Древесно-полимерный композит устойчив к износу, не боится высокой влажности воздуха, не выгорает на солнце.
Преимущества проекта:
- Комбинированная отделка фасадов.
- Функциональная планировка.
- Мансардный этаж.
В сборке домов по технологии СИП, КАРКАС мы используем пиломатериал камерной сушки, калиброванный, строганный, антисептированный, который обеспечит запас прочности вашего дома.
| КАРКАС | ||
| Стандарт (Стены 15см): от 2 567 900 | Премиум (Стены 20см): от 2 893 800 | |
| Проектные работы: архитектурный проект, 3D-визуализация наружной и внутренней части дома | ||
| Фундамент: Винтовые сваи длиной 2500 мм. под ключ | ||
| Полы: утепление 150 мм, доска пола 35 мм. Обработка огнебиозащитой нижнего конструктива | утепление 200 мм по энергофлексу, доска пола 35 мм. Обработка огнебиозащитой нижнего конструктива | |
| Стены: утепление 150 мм, отделка внутри и снаружи вагонкой 12,5 мм | утепление 200 мм, отделка внутри вагонкой 12,5 мм, снаружи - сайдинг | |
| Потолок: Высота 1 этажа: 2,5 м; Высота мансард этажа max - 3,2 м. Min- 1,4 м. | ||
| Перегородки: Перегородки - каркас 100 мм, отделка вагонкой 12,5 мм, утепление - 100 мм | ||
| Межэтажное перекрытие: звукоизоляция 50 мм, отделка вагонкой 12,5 мм | звукоизоляция 100 мм, отделка вагонкой 12,5 мм | |
| Крыша: утепление 150 мм, отделка вагонкой 12,5 мм | утепление 200 мм, отделка вагонкой 12,5 мм | |
| Кровля: Оцинкованный профнастил | Металлочерепица | |
| Монтаж: Бригада Дома Строим, крепеж и комплектующие | ||
Дополнительные работы (оплачиваются отдельно): 1. Окна ПВХ 2. Дверь входная 3. Вентиляционные выходы на крышу 4. Монтаж водосточной системы 5. Отделка свесов крыши/навесов 6. Чистовая отделка террасы, крыльца, балкона 7. Отделка фасада 8. Отделка цоколя | ||
Категория:
Общая площадь:
97,5 м²Стоимость:
от 2 567 900₽Выражаю свою благодарность компании "Дома Строим" (г. Видное) за строительство качественного, крепкого, теплого и уютного дома. Отдельное огромное, человеческое Спасибо Марине - Генеральному директору компании и Владимиру за терпение, профессиональный подход к делу, за всестороннюю помощь, за честность, ведение нашего строительства с нуля и до завершения, всегда на связи , всегда есть ответы на любые вопросы, верные советы и рекомендации. Никаких удорожаний после расчетов, и оплаты. В процессе строительства были соблюдены все сроки, от фундамента до сдача дома. Спасибо, большое строительной бригаде, которая работала над нашим домом. Дом нашей мечты получился таким, каким должен был быть. Буквально за месяц на нашем участке появился наш двухэтажный красавец. Еще раз, спасибо. Ольга. Московская область, Богородский городской округ, Ногинский район, ДНП Изумрудная поляна
Решили построить дом из СИП-панелей. Было решено найти тех, кто построит по фото. Оказалось не так просто в сезон (да еще с самоизоляцией и карантином все в стройки/ремонты ударились) найти компанию, которая в принципе возьмется не за свой типовой проект, да еще и чтоб ценник разумный вышел. Однако нам повезло! Компания "Дома Строим" охотно отозвалась выполнить эту задачу. Компанией полностью довольны, рекомендуем!
Заказывали в «Дома Строим» дом из бруса, так как видели их дома в коттеджном поселке. Сам сруб нам сделали за месяц, сборка под крышу тоже около того. Дом очень теплый и нам очень нравится. Мы не пожалели, что выбрали клееный брус и компанию «Дома Строим». Еще немного и будем отмечать новоселье.
Задались с женой вопросом о постройке дома на даче.
После долгого поиска выбрали компанию "Дома Строим". Нашли очень уютный каркасный домик по недорогой цене. Сразу же позвонили в компанию "Дома Строим" и быстро обо всем договорились.
Сроки строительства нас очень порадовали! Не прошло и полмесяца, как «Дома Строим» сделали фундамент и возвели сам дом.
Всем довольны, всем рекомендуем!
-
Перепланировка
Внесение любых изменений в планировку и фасады дома, адаптация под СИП проектов из других материалов или полностью индивидуальная разработка с нуля
-
Исследование грунта
Производится в обязательном порядке с выездом специалиста на участок для оценки грунта и подбора оптимального фундамента
-
Гарантия качества
Качество стоит для нас на первом месте, поэтому мы имеем ОТК на производстве, технический надзор на стройплощадке и даем официальную гарантию
Остались вопросы? Позвоните нашему специалисту по номеру 8 (800) 511-22-02 или пишите в WhatsApp.
![]()
Консультация в офисе
![]()
Показ построенных нами объектов
![]()
Расчет стоимости
![]()
Заключение договора
![]()
Строительство
![]()
Сдача объекта
![]()
Подписание акта
![]()
Счастливая жизнь за городом






















































