- Главная
- Каркасные дома
- Заречье
Заречье



Категория:
Доступные размеры:
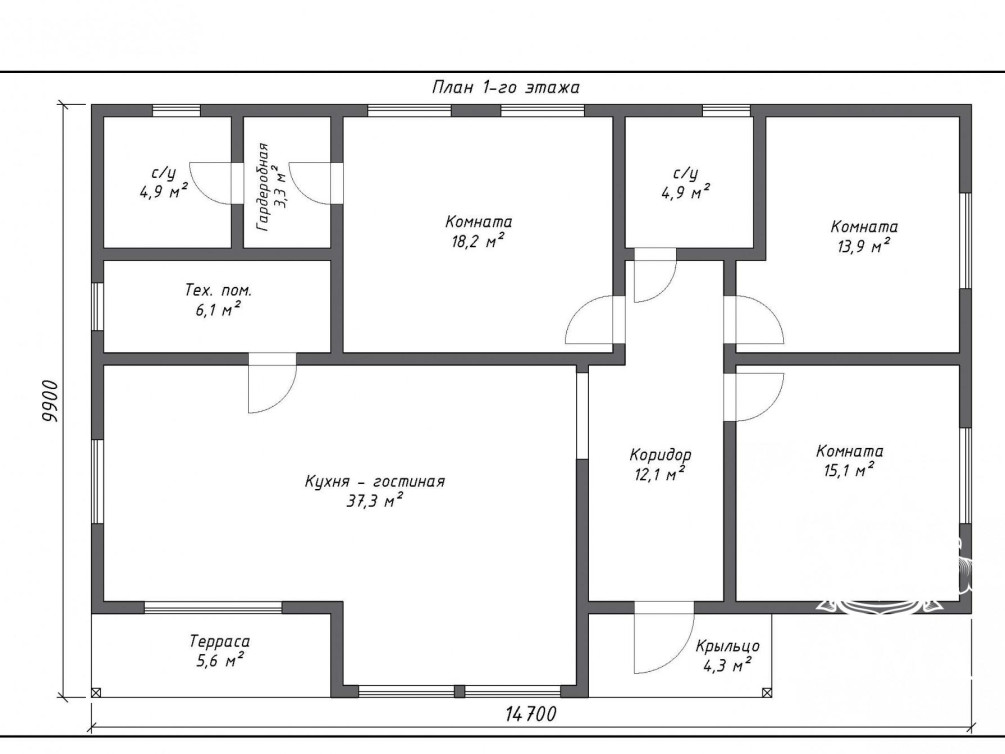
Общая площадь:
140,86 м²(в площадь входит терраса)
Стоимость:
от 5 420 000₽Срок строительства:
от 25 дней- Веранда
- Терраса
- Одноэтажный
Остались вопросы? Позвоните нашему специалисту по номеру 8 (800) 511-22-02 или пишите в WhatsApp.
Мудрым хозяевам, желающим обзавестись собственной недвижимостью, самое время обратить внимание на проекты домов из СИПа и каркаса от компании «ДомаСтроим». Наша продукция отличается доступными ценами, а процесс возведения осуществляется быстро и на привлекательных для заказчика условиях. Вы можете дополнить дом пристройками и террасами, изменить планировку или немного подвинуть стены по вашему вкусу, а также выбрать материал изготовления дома. Мы реализуем любые ваши идеи!
Строительство дома по проекту «Заречье» с использованием каркасной технологии занимает от 25 дней, при необходимости мы также возьмем на себя выполнение финишных работ. За короткий срок вы получите готовый к проживанию, уютный и красивый дом общей площадью 140,86 м² с террасой, панорамным остеклением кухни-гостиной и грамотной планировкой.
В доме, помимо просторной кухни-гостиной, три комнаты — все их можно использовать как спальни, или же выделить одну под кабинет, гостевую, детскую. При большой спальне предусмотрены санузел и гардеробная. Есть техническое помещение под котельную, а также общий санузел. Все комнаты изолированные. Если вы захотите, планировку дома можно изменить.
Завершенный вид дому придаст отделка фасадов плиткой с имитацией кирпичной кладки HAUBERK, а также отделка террасы и крыльца декингом из ДПК. Это современные материалы, долговечные и экологичные. Декинг не нужно обрабатывать, он не боится влаги, не теряет яркости под лучами солнца.
Преимущества проекта:
- Подходит для небольших участков.
- Отделка фасадов плиткой HAUBERK.
- Удобная планировка с изолированными комнатами.
В сборке домов по технологии КАРКАС мы используем пиломатериал камерной сушки, калиброванный, строганный, антисептированный, который обеспечит запас прочности вашего дома.
| КАРКАС | ||
| Стандарт (Стены 15см): от 5 420 000 | Премиум (Стены 20см): от 5 796 850 | |
| Проектные работы: архитектурный проект, 3D-визуализация наружной и внутренней части дома | ||
| Фундамент: Винтовые сваи длиной 2500 мм. под ключ | ||
| Полы: утепление 150 мм, доска пола 35 мм. Обработка огнебиозащитой нижнего конструктива | утепление 200 мм по энергофлексу, доска пола 35 мм. Обработка огнебиозащитой нижнего конструктива | |
| Стены: утепление 150 мм, отделка внутри и снаружи вагонкой 12,5 мм | утепление 200 мм, отделка внутри вагонкой 12,5 мм, снаружи - вагонка | |
| Потолок: Высота 2,80 м – 4,20 м | ||
| Перегородки: Перегородки - каркас 100 мм, отделка вагонкой 12,5 мм, утепление - 100 мм | ||
| Чердачное перекрытие, Крыша: утепление 150 мм, отделка вагонкой 12,5 мм | утепление 200 мм, отделка вагонкой 12,5 мм | |
| Кровля: Оцинкованный профнастил | Металлочерепица | |
| Монтаж: Бригада Дома Строим, крепеж и комплектующие | ||
|
Дополнительные работы (оплачиваются отдельно): 1. Окна ПВХ 2. Дверь входная 3. Вентиляционные выходы на крышу 4. Монтаж водосточной системы 5. Отделка свесов крыши/навесов 6. Чистовая отделка террасы, крыльца, балкона 7. Отделка фасада 8. Отделка цоколя | ||
Категория:
Общая площадь:
(в площадь входит терраса)
Стоимость:
от 5 420 000₽Выражаю свою благодарность компании "Дома Строим" (г. Видное) за строительство качественного, крепкого, теплого и уютного дома. Отдельное огромное, человеческое Спасибо Марине - Генеральному директору компании и Владимиру за терпение, профессиональный подход к делу, за всестороннюю помощь, за честность, ведение нашего строительства с нуля и до завершения, всегда на связи , всегда есть ответы на любые вопросы, верные советы и рекомендации. Никаких удорожаний после расчетов, и оплаты. В процессе строительства были соблюдены все сроки, от фундамента до сдача дома. Спасибо, большое строительной бригаде, которая работала над нашим домом. Дом нашей мечты получился таким, каким должен был быть. Буквально за месяц на нашем участке появился наш двухэтажный красавец. Еще раз, спасибо. Ольга. Московская область, Богородский городской округ, Ногинский район, ДНП Изумрудная поляна
Решили построить дом из СИП-панелей. Было решено найти тех, кто построит по фото. Оказалось не так просто в сезон (да еще с самоизоляцией и карантином все в стройки/ремонты ударились) найти компанию, которая в принципе возьмется не за свой типовой проект, да еще и чтоб ценник разумный вышел. Однако нам повезло! Компания "Дома Строим" охотно отозвалась выполнить эту задачу. Компанией полностью довольны, рекомендуем!
Заказывали в «Дома Строим» дом из бруса, так как видели их дома в коттеджном поселке. Сам сруб нам сделали за месяц, сборка под крышу тоже около того. Дом очень теплый и нам очень нравится. Мы не пожалели, что выбрали клееный брус и компанию «Дома Строим». Еще немного и будем отмечать новоселье.
Задались с женой вопросом о постройке дома на даче.
После долгого поиска выбрали компанию "Дома Строим". Нашли очень уютный каркасный домик по недорогой цене. Сразу же позвонили в компанию "Дома Строим" и быстро обо всем договорились.
Сроки строительства нас очень порадовали! Не прошло и полмесяца, как «Дома Строим» сделали фундамент и возвели сам дом.
Всем довольны, всем рекомендуем!
-
Перепланировка
Внесение любых изменений в планировку и фасады дома, адаптация под СИП проектов из других материалов или полностью индивидуальная разработка с нуля
-
Исследование грунта
Производится в обязательном порядке с выездом специалиста на участок для оценки грунта и подбора оптимального фундамента
-
Гарантия качества
Качество стоит для нас на первом месте, поэтому мы имеем ОТК на производстве, технический надзор на стройплощадке и даем официальную гарантию
Остались вопросы? Позвоните нашему специалисту по номеру 8 (800) 511-22-02 или пишите в WhatsApp.
![]()
Консультация в офисе
![]()
Показ построенных нами объектов
![]()
Расчет стоимости
![]()
Заключение договора
![]()
Строительство
![]()
Сдача объекта
![]()
Подписание акта
![]()
Счастливая жизнь за городом





















































