БН 11-10




Исполнение:
Доступные размеры:
- Двухэтажный
Остались вопросы? Позвоните нашему специалисту по номеру 8 (800) 511-22-02 или пишите в WhatsApp.
Мудрым хозяевам, желающим обзавестись собственной недвижимостью, самое время обратить внимание на проекты бань из оцилиндрованного и рубленного бревна от компании «ДомаСтроим». Наша продукция отличается доступными ценами, а процесс возведения осуществляется быстро и на привлекательных для заказчика условиях. Вы можете дополнить дом пристройками и террасами, изменить планировку или немного подвинуть стены по вашему вкусу, а также выбрать материал изготовления дома. Мы реализуем любые ваши идеи!
Баня с мансардным этажом общей площадью 100 м² станет идеальным местом для загородного отдыха. Продуманная планировка сделает ее использование максимально приятным и комфортным, а качественные экологически чистые материалы обеспечат долговечность и надежность бани. Вы можете выбирать между рубленым и оцилиндрованным бревном, а мы построим эту баню за срок от 18 дней. Гарантируем высокое качество работ и строгое соблюдение сроков, указанных в договоре. Готовы внести изменения в планировку по вашему желанию, просто сообщите нам о нем заранее.
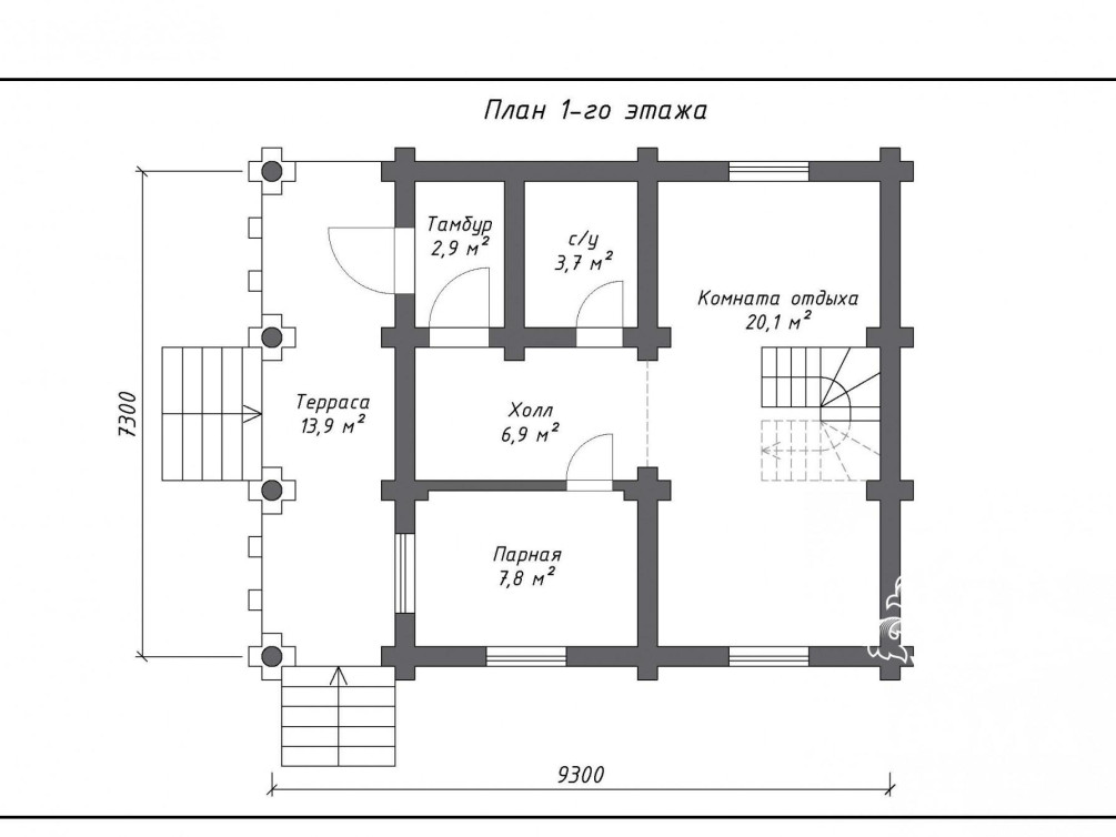
На первом этаже бани расположены тамбур, санузел, холл, парная и комната отдыха. Наверху — холл со вторым светом, еще одна комната отдыха с выходом на балкон. Балкон, как и террасу площадью 13,9 м2 перед входом будет несложно превратить в лаунж-зоны: плетеная уличная мебель сделает пребывание на свежем воздухе комфортным. Вы сможете приятно проводить время после бани с чашечкой ароматного чая или прохладительными напитками.
Преимущества проекта:
- Идеально для больших семей, где любят принимать гостей, или в качестве бани для сдачи в аренду.
- Большая крытая терраса, мансарда со вторым светом и балконом для отдыха в теплое время года.
Что входит в стоимость :
Установка сруба.
Диаметр бревна от 240 мм.
Высота стен сруба 1-го этажа 2.5м ( в чистоте 2,15 м.)
Высота стен сруба 2 этажа от 1,5 м.
Перекрытие 1-го этажа (лаги) — бревно или брус 100x150 мм.
Черновой пол — доска 25 мм.
ОБРАБОТКА АНТИСЕПТИКОМ нижнего венца и лаг пола 1 этажа.
Перекрытие мансардного этажа — бревно или брус 100x150 мм.
Усиленная стропильная система — 50x150 мм. или 100x200 мм.
Обрешетка — обрезная доска 25 мм.
Рубероид — стартовая кровля на I этапе
Доставка сруба — бесплатная, из Вологды (550 км) в любую точку Московской области, далее 60 р 1 км.
Дополнительные расходные материалы:
- разгрузка сруба автокраном
- разгрузка леса
- нагиля - деревянные шипы (Д 24 мм.)
- гвозди, скобы
- межвенцовый прокладочный материал – мох.
Категория:
Общая площадь:
100 м²Стоимость:
По запросуВыражаю свою благодарность компании "Дома Строим" (г. Видное) за строительство качественного, крепкого, теплого и уютного дома. Отдельное огромное, человеческое Спасибо Марине - Генеральному директору компании и Владимиру за терпение, профессиональный подход к делу, за всестороннюю помощь, за честность, ведение нашего строительства с нуля и до завершения, всегда на связи , всегда есть ответы на любые вопросы, верные советы и рекомендации. Никаких удорожаний после расчетов, и оплаты. В процессе строительства были соблюдены все сроки, от фундамента до сдача дома. Спасибо, большое строительной бригаде, которая работала над нашим домом. Дом нашей мечты получился таким, каким должен был быть. Буквально за месяц на нашем участке появился наш двухэтажный красавец. Еще раз, спасибо. Ольга. Московская область, Богородский городской округ, Ногинский район, ДНП Изумрудная поляна
Решили построить дом из СИП-панелей. Было решено найти тех, кто построит по фото. Оказалось не так просто в сезон (да еще с самоизоляцией и карантином все в стройки/ремонты ударились) найти компанию, которая в принципе возьмется не за свой типовой проект, да еще и чтоб ценник разумный вышел. Однако нам повезло! Компания "Дома Строим" охотно отозвалась выполнить эту задачу. Компанией полностью довольны, рекомендуем!
Заказывали в «Дома Строим» дом из бруса, так как видели их дома в коттеджном поселке. Сам сруб нам сделали за месяц, сборка под крышу тоже около того. Дом очень теплый и нам очень нравится. Мы не пожалели, что выбрали клееный брус и компанию «Дома Строим». Еще немного и будем отмечать новоселье.
Задались с женой вопросом о постройке дома на даче.
После долгого поиска выбрали компанию "Дома Строим". Нашли очень уютный каркасный домик по недорогой цене. Сразу же позвонили в компанию "Дома Строим" и быстро обо всем договорились.
Сроки строительства нас очень порадовали! Не прошло и полмесяца, как «Дома Строим» сделали фундамент и возвели сам дом.
Всем довольны, всем рекомендуем!
-
Перепланировка
Внесение любых изменений в планировку и фасады дома, адаптация под СИП проектов из других материалов или полностью индивидуальная разработка с нуля
-
Исследование грунта
Производится в обязательном порядке с выездом специалиста на участок для оценки грунта и подбора оптимального фундамента
-
Гарантия качества
Качество стоит для нас на первом месте, поэтому мы имеем ОТК на производстве, технический надзор на стройплощадке и даем официальную гарантию
Остались вопросы? Позвоните нашему специалисту по номеру 8 (800) 511-22-02 или пишите в WhatsApp.
![]()
Консультация в офисе
![]()
Показ построенных нами объектов
![]()
Расчет стоимости
![]()
Заключение договора
![]()
Строительство
![]()
Сдача объекта
![]()
Подписание акта
![]()
Счастливая жизнь за городом






















