- Главная
- Дома из бруса
- Выборг
Выборг




Исполнение:
Доступные размеры:
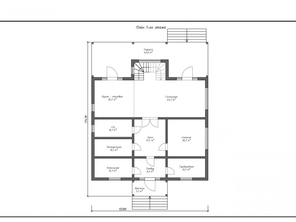
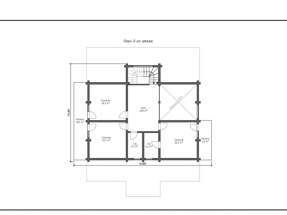
Общая площадь:
347 м²(в площадь входит терраса)
Стоимость:
от 14 405 000₽Срок строительства:
от 25 дней- Веранда
- Терраса
- Мансардный этаж
- Двухэтажный
- С мансардой
Остались вопросы? Позвоните нашему специалисту по номеру 8 (800) 511-22-02 или пишите в WhatsApp.
Мудрым хозяевам, желающим обзавестись собственной недвижимостью, самое время обратить внимание на проекты домов из обычного и профилированного от компании «Дома Строим». Наша продукция отличается доступными ценами, а процесс возведения осуществляется быстро и на привлекательных для заказчика условиях. Вы можете дополнить дом пристройками и террасами, изменить планировку или немного подвинуть стены по вашему вкусу, а также выбрать материал изготовления дома. Мы реализуем любые ваши идеи!
Исполнение:
Комбинированный: газоблок + клееный брус; газоблок + профилированный брус.
Высота 1-го этажа — от 2,60 м
Высота 2-го этажа — от 2,25 м
Что входит в стоимость :
Фундамент — свайно-ростверковый;
Стены 1 этажа — газоблок;
Стены 2 этажа — клееный брус; профилированный брус;
Перекрытия — бетонные плиты;
Внутренние перегородки — кирпич;
Кровля — утепление 200 мм, металлочерепица (цвет на выбор);
Монтаж: Бригада Дома Строим.
Категория:
Общая площадь:
(в площадь входит терраса)
Стоимость:
от 14 405 000₽Выражаю свою благодарность компании "Дома Строим" (г. Видное) за строительство качественного, крепкого, теплого и уютного дома. Отдельное огромное, человеческое Спасибо Марине - Генеральному директору компании и Владимиру за терпение, профессиональный подход к делу, за всестороннюю помощь, за честность, ведение нашего строительства с нуля и до завершения, всегда на связи , всегда есть ответы на любые вопросы, верные советы и рекомендации. Никаких удорожаний после расчетов, и оплаты. В процессе строительства были соблюдены все сроки, от фундамента до сдача дома. Спасибо, большое строительной бригаде, которая работала над нашим домом. Дом нашей мечты получился таким, каким должен был быть. Буквально за месяц на нашем участке появился наш двухэтажный красавец. Еще раз, спасибо. Ольга. Московская область, Богородский городской округ, Ногинский район, ДНП Изумрудная поляна
Решили построить дом из СИП-панелей. Было решено найти тех, кто построит по фото. Оказалось не так просто в сезон (да еще с самоизоляцией и карантином все в стройки/ремонты ударились) найти компанию, которая в принципе возьмется не за свой типовой проект, да еще и чтоб ценник разумный вышел. Однако нам повезло! Компания "Дома Строим" охотно отозвалась выполнить эту задачу. Компанией полностью довольны, рекомендуем!
Заказывали в «Дома Строим» дом из бруса, так как видели их дома в коттеджном поселке. Сам сруб нам сделали за месяц, сборка под крышу тоже около того. Дом очень теплый и нам очень нравится. Мы не пожалели, что выбрали клееный брус и компанию «Дома Строим». Еще немного и будем отмечать новоселье.
Задались с женой вопросом о постройке дома на даче.
После долгого поиска выбрали компанию "Дома Строим". Нашли очень уютный каркасный домик по недорогой цене. Сразу же позвонили в компанию "Дома Строим" и быстро обо всем договорились.
Сроки строительства нас очень порадовали! Не прошло и полмесяца, как «Дома Строим» сделали фундамент и возвели сам дом.
Всем довольны, всем рекомендуем!
-
Перепланировка
Внесение любых изменений в планировку и фасады дома, адаптация под СИП проектов из других материалов или полностью индивидуальная разработка с нуля
-
Исследование грунта
Производится в обязательном порядке с выездом специалиста на участок для оценки грунта и подбора оптимального фундамента
-
Гарантия качества
Качество стоит для нас на первом месте, поэтому мы имеем ОТК на производстве, технический надзор на стройплощадке и даем официальную гарантию
Остались вопросы? Позвоните нашему специалисту по номеру 8 (800) 511-22-02 или пишите в WhatsApp.
![]()
Консультация в офисе
![]()
Показ построенных нами объектов
![]()
Расчет стоимости
![]()
Заключение договора
![]()
Строительство
![]()
Сдача объекта
![]()
Подписание акта
![]()
Счастливая жизнь за городом












