- Главная
- Каркасные дома
- Мечтаево
Мечтаево



Категория:
Доступные размеры:
Общая площадь:
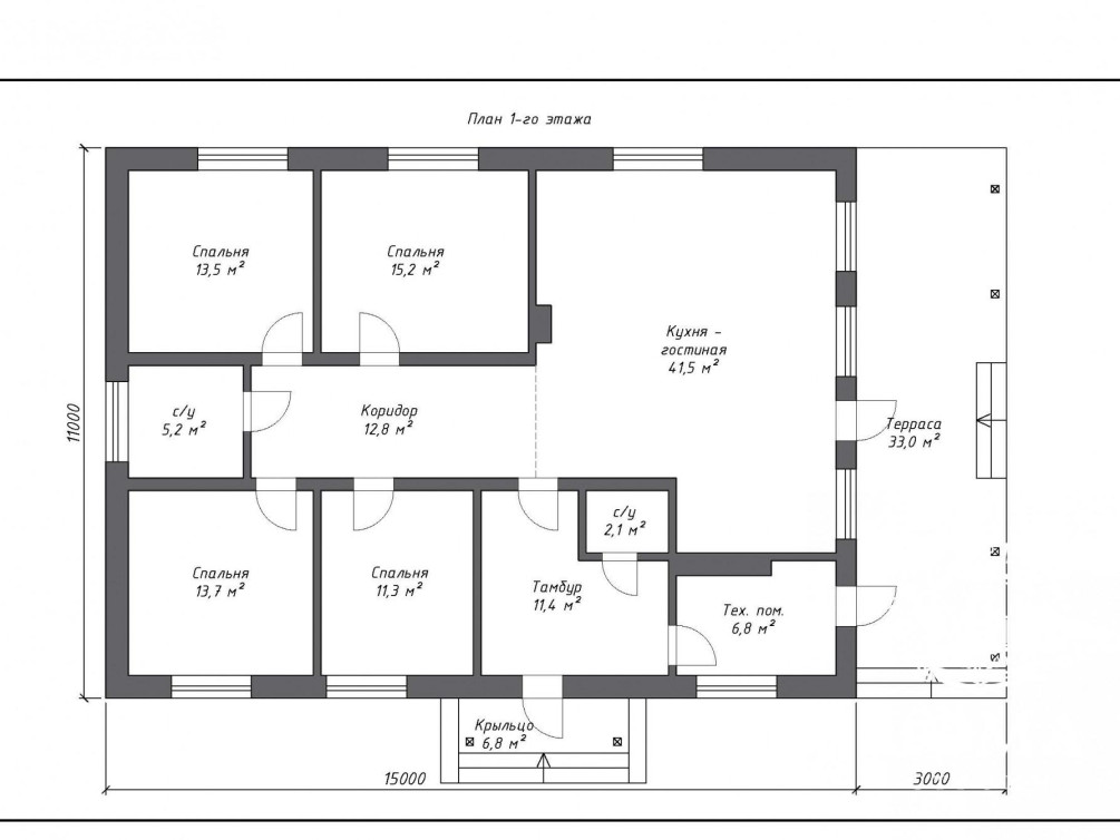
198 м²(в площадь входит терраса)
Стоимость:
от 5 840 880₽Срок строительства:
от 35 дней- Веранда
- Терраса
- Одноэтажный
Остались вопросы? Позвоните нашему специалисту по номеру 8 (800) 511-22-02 или пишите в WhatsApp.
Мудрым хозяевам, желающим обзавестись собственной недвижимостью, самое время обратить внимание на проекты домов из СИПа и каркаса от компании «ДомаСтроим». Наша продукция отличается доступными ценами, а процесс возведения осуществляется быстро и на привлекательных для заказчика условиях. Вы можете дополнить дом пристройками и террасами, изменить планировку или немного подвинуть стены по вашему вкусу, а также выбрать материал изготовления дома. Мы реализуем любые ваши идеи!
Если вы не ограничены небольшой площадью участка и мечтаете о просторном и уютном доме, рекомендуем рассмотреть проект «Мечтаево». Его общая площадь — 198 м², все комнаты расположены на одном уровне, что очень удобно для жизни. Строительство этого дома по каркасной технологии занимает от 35 дней. По вашему запросу мы можем изменить планировку, а также выполним отделочные и другие финишные работы. Вам останется только готовиться к новоселью.
Планировка дома рассчитана на большую семью: в нем четыре спальни, два санузла, кухня-гостиная и подсобное помещение. Просторный тамбур площадью 11,4 м2 позволит разместить шкаф для хранения верхней одежды. Терраса перед главным фасадом крытая, а значит, она станет чудесным местом для отдыха теплыми летними вечерами: просто поставьте здесь стол с креслами, шезлонг и наслаждайтесь свежим воздухом. В качестве материала настила на террасе использован декинг ДПК. Это экологичный, прочный материал, которому не страшны ни влага, ни перепады температур.
Преимущества проекта:
- Отделка фасадов панелями с имитацией кирпичной кладки.
- Большая крытая терраса для отдыха в теплое время года.
- Продуманная планировка для большой семьи с изолированными комнатами.
В сборке домов по технологии СИП, КАРКАС мы используем пиломатериал камерной сушки, калиброванный, строганный, антисептированный, который обеспечит запас прочности вашего дома.
| КАРКАС | ||
| Стандарт (Стены 15см): от 5 840 880 | Премиум (Стены 20см): от 6 611 000 | |
| Проектные работы: архитектурный проект, 3D-визуализация наружной и внутренней части дома | ||
| Фундамент: Винтовые сваи длиной 2500 мм. под ключ | ||
| Полы: утепление 150 мм, доска пола 35 мм. Обработка огнебиозащитой нижнего конструктива | утепление 200 мм по энергофлексу, доска пола 35 мм. Обработка огнебиозащитой нижнего конструктива | |
| Стены: каркас 150 мм., утепление 150 мм, отделка внутри и снаружи вагонкой 12,5 мм | каркас 150 мм., утепление 200 мм, отделка внутри вагонкой 12,5 мм, снаружи - сайдинг | |
| Потолок: Высота 2,8 м. | ||
| Перегородки: Перегородки - каркас 100 мм, отделка вагонкой 12,5 мм, утепление - 100 мм | ||
| Чердачное перекрытие: утепление 150 мм, отделка вагонкой 12,5 мм | утепление 2000 мм, отделка вагонкой 12,5 мм | |
| Кровля: Оцинкованный профнастил | Металлочерепица | |
| Монтаж: Бригада Дома Строим, крепеж и комплектующие | ||
| Дополнительные работы (оплачиваются отдельно): 1. Окна ПВХ 2. Дверь входная 3. Вентиляционные выходы на крышу 4. Монтаж водосточной системы 5. Отделка свесов крыши/навесов 6. Чистовая отделка террасы, крыльца, балкона 7. Отделка фасада 8. Отделка цоколя | ||
Категория:
Общая площадь: 
(в площадь входит терраса)
Стоимость:
от 5 840 880₽Выражаю свою благодарность компании "Дома Строим" (г. Видное) за строительство качественного, крепкого, теплого и уютного дома. Отдельное огромное, человеческое Спасибо Марине - Генеральному директору компании и Владимиру за терпение, профессиональный подход к делу, за всестороннюю помощь, за честность, ведение нашего строительства с нуля и до завершения, всегда на связи , всегда есть ответы на любые вопросы, верные советы и рекомендации. Никаких удорожаний после расчетов, и оплаты. В процессе строительства были соблюдены все сроки, от фундамента до сдача дома. Спасибо, большое строительной бригаде, которая работала над нашим домом. Дом нашей мечты получился таким, каким должен был быть. Буквально за месяц на нашем участке появился наш двухэтажный красавец. Еще раз, спасибо. Ольга. Московская область, Богородский городской округ, Ногинский район, ДНП Изумрудная поляна
Решили построить дом из СИП-панелей. Было решено найти тех, кто построит по фото. Оказалось не так просто в сезон (да еще с самоизоляцией и карантином все в стройки/ремонты ударились) найти компанию, которая в принципе возьмется не за свой типовой проект, да еще и чтоб ценник разумный вышел. Однако нам повезло! Компания "Дома Строим" охотно отозвалась выполнить эту задачу. Компанией полностью довольны, рекомендуем!
Заказывали в «Дома Строим» дом из бруса, так как видели их дома в коттеджном поселке. Сам сруб нам сделали за месяц, сборка под крышу тоже около того. Дом очень теплый и нам очень нравится. Мы не пожалели, что выбрали клееный брус и компанию «Дома Строим». Еще немного и будем отмечать новоселье.
Задались с женой вопросом о постройке дома на даче. 
После долгого поиска выбрали компанию "Дома Строим". Нашли очень уютный каркасный домик по недорогой цене. Сразу же позвонили в компанию "Дома Строим" и быстро обо всем договорились. 
Сроки строительства нас очень порадовали! Не прошло и полмесяца, как «Дома Строим» сделали фундамент и возвели сам дом. 
Всем довольны, всем рекомендуем!
- 
      ![]()  ПерепланировкаВнесение любых изменений в планировку и фасады дома, адаптация под СИП проектов из других материалов или полностью индивидуальная разработка с нуля 
- 
      ![]()  Исследование грунтаПроизводится в обязательном порядке с выездом специалиста на участок для оценки грунта и подбора оптимального фундамента 
- 
      ![]()  Гарантия качестваКачество стоит для нас на первом месте, поэтому мы имеем ОТК на производстве, технический надзор на стройплощадке и даем официальную гарантию 
Остались вопросы? Позвоните нашему специалисту по номеру 8 (800) 511-22-02 или пишите в WhatsApp.
![]() - Консультация в офисе 
![]() - Показ построенных нами объектов 
![]() - Расчет стоимости 
![]() - Заключение договора 
![]() - Строительство 
![]() - Сдача объекта 
![]() - Подписание акта 
![]() - Счастливая жизнь за городом 














































 
       
       
       
         
         
         
         
         
         
         
         
         
        






